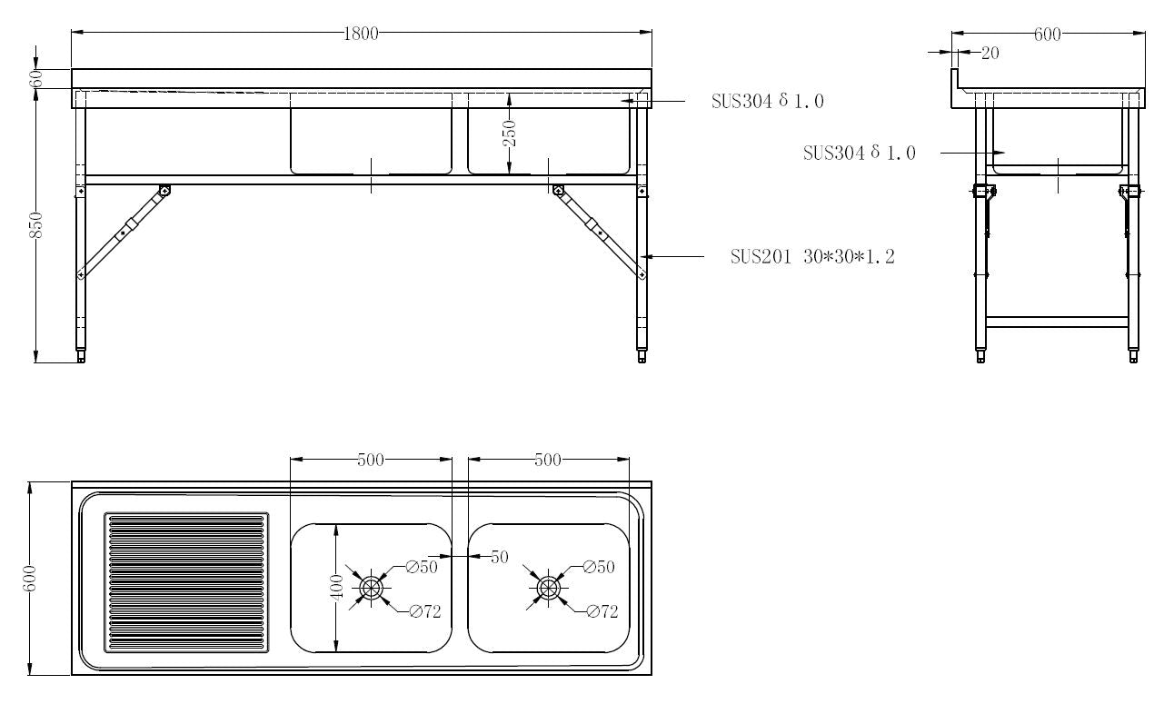
600 Fold Down Sink Unit – 1800mm (2R)
A durable and space-efficient stainless steel sink unit with two right-hand sink bowls, designed for demanding commercial environments. Its fold-down structure and reinforced undershelf provide both functionality and strength, ideal for kitchens, prep areas, or utility spaces.
Specifications:
-
Overall Dimensions (WxDxH): 1800 x 600 x 910 mm
-
Sink Bowl Size (each): 500 x 400 x 250 mm
-
Number of Sinks: 2 (Right-hand configuration)
-
Max. Load Capacity (Shelf): 115 kg
-
Gross Weight: 30 kg
